本期《来我家》要带大家走进一个超幸福的三口之家(应该说是五口之家,因为还有两只超可爱的狗狗)。这个180㎡的现代简约风格新家,以舒适的灰色调为主,点缀活泼的蓝色和黄色,使整个空间更加有活力。
今天就跟着小美一起来看看这幸福的五口之家吧!
房主杨姐特别喜欢研究菜品,经常在家做西点,追求精致的生活。设计师在设计中尽可能减少隔墙,弱化视觉阻碍的同时放大空间的通透性,从而使整体空间氛围更加简洁典雅。在色彩方面,采用对比色相搭配法,体现出空间的视觉焦点,彰显活力。
房屋信息
房子位置_ 鑫远和城
面积户型_180平四房一厅三卫
装修总花费_24万
装修花费总时长_6个月
家居风格_现代简约风
家中最爱_客厅、吧台
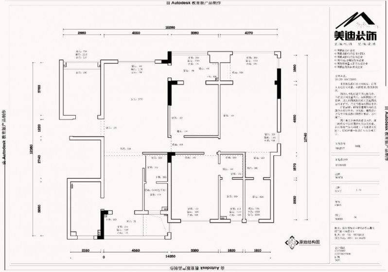
原始结构图
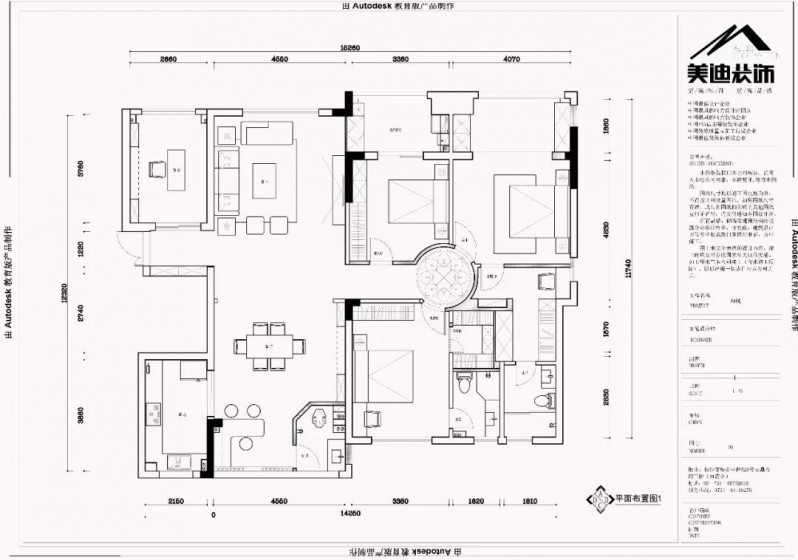
平面布置图
户型改造:空间布局没有大改动,根据业主个性需求设计了富有情调的吧台和独立的书房电玩室,小孩房单独设置了一个更换衣物的小空间。
▲客厅区域
整个空间调性以灰色为主,凸显空间质感,沉静的深蓝色皮质沙发与活泼黄色调的枕头点缀使空间亮了起来。
▲客厅区域
客厅上的吊灯,也是极具设计与线条感,与壁画的搭配相辅相成。
▲客厅区域
客厅艺术挂画是设计师为业主精心挑选的,建筑的灰白调,以及层次分明的线条感,极大程度上提升了整个空间的格调。
▲餐厅区域
打造了一个开放式家居,客餐厅一体化使空间更加流畅。墙面挂画更显自然原生态,符合餐厅饮食的设计风格。
▲吧台
设计师根据业主个性需求,打造了一个客厅、餐厅、吧台三位一体的空间,吧台旁边是柜子和微波炉,方便业主平时制作西点,一家人在此品味精美的西点,感受生活中的小情调。

业主还养了两只雪纳瑞,一只叫“点点”一只叫“可乐”小房子,是不是超可爱呢。
更多空间细节

一问一答
1、美迪装饰:你为什么会选择美迪装饰?
杨姐:半年前我们就来美迪了解过,设计师龙思洛老师的方案与服务给我们留下了深刻的印象。但是我们不是很着急入住,所以在半年内考察过十几家装修公司与工作室,几经对比下还是觉得美迪的设计方案更完美,也相信美迪装饰的实力,所以选择了美迪。
2、美迪装饰:装修后您对新家的哪些地方最满意呢?
杨姐:每个地方都很满意,特别是吧台,设计师龙思洛老师为我们亲自挑选了软装配饰,我觉得挺符合这个整体的装修布局,非常用心。
3、美迪装饰:在整个装修过程中,你觉得美迪装饰的设计师、施工人员等工作人员带给你最大的感受是什么呢?
杨姐:“专业”应该是美迪给我的最大感受。设计师了解了我们的需求后,在设计上达到了功能性和美观性兼顾的效果。包括客服经理、项目经理的服务都非常专业,每次我提出的问题都会立马解决,所以整个装修过程很省心。
提交您的信息专业家装顾问1对1服务
免费电话申请: 18684928503
马上提交申请即送1000元家装抵用券