美迪装饰

高品质装修选美迪

十年后仍爱我家

24小时咨询热线

400-096-6088

您的位置: 首页 > 家装百科 > 家装趋势 > 44平方米装修成这样,住起来感受不比大宅差!

44平方米装修成这样,住起来感受不比大宅差!

浏览数:4493次 | 发布时间:2018-11-11 |
分享到:

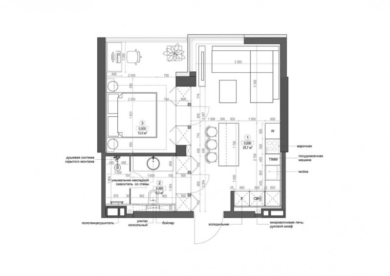
这是一个44平方米的一居室项目,户型方正,功能区布局科学,简约但偏成熟稳重的室内装饰非常耐看。

从平面布局可以看到,整个房子私人区(卧室和卫生间)位于左侧,而公共区(厨房、餐厅和客厅)位于右侧。

设计师淡化了客厅的界限,严格意义上的客厅(沙发和电视区)其实非常小,不过,由于公共区已经将客厅、餐厅和厨房打通,所以三个功能区融合在一起,变成一个更大、更好用的公共区域。

厨房岛充当了餐桌和吧台的作用,而餐椅也是简约的吧凳。

卧室区域总面积为13平方米,入门两侧是两个独立衣柜,而上方还做了一个办公区,配色平和简洁。

卫生间总面积为5.3平方米,冲凉房用玻璃墙隔开,干湿分区很科学。

 

分享到:

相关阅读

免费获取报价