小美风格完美融合了传统美式与现代设计的精华,成就低调现代的美式生活。本期《美家记》是一套旧房改造型住宅,业主陈姐对美式风格情有独钟,它不仅有传统的稳重,也融合现代的摩登时尚。下面小美要带大家走进陈姐的五口之家,欣赏美式的独特风情。
美家信息
楼盘:中天瑞景
户型:三室两厅
面积:147平米
造价:40万
设计风格:美式
设计师:陈昌
房间在细节和整体线条中突出了小美风格的简洁、自由,增加了空间层次感。在空间上,由于是五口之家,首先考虑到的就是收纳,陈昌设计师特意添加了置顶式收纳柜,同时选择与墙面一致的颜色,扩大了空间的视觉效果,提升了房间的收纳功能。
美家分析
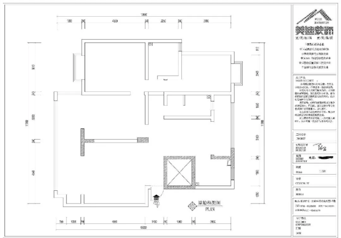
▲原始结构图
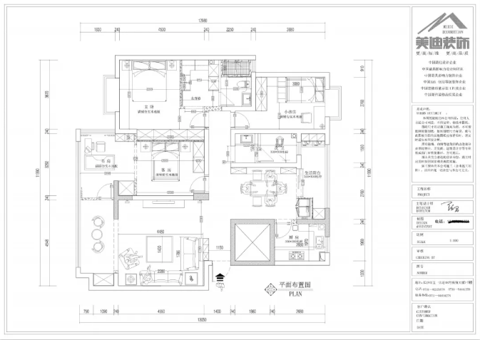
1.陈昌设计师把卧室从原本的两个空间增加到了三个,在中间的位置打造出一个小型的衣帽间,这样主卧位置就变成了卧室、衣帽间、卫生间;
2.次卧分一部分,结合阳台的位置做成了一个书房;
3.主卧和次卧的位置增加了飘窗,把卧室空间又增加了不少。

▲ 平面布置图
美家故事
陈姐在银行工作,爱人王先生在电力设计院工作,在多年的相识、相爱到结婚,现在有了五个月的男宝宝。两个爱的人在一起,靠的是彼此的信任和对方浓浓的爱意。得知陈姐怀宝宝的时候,王先生就想把他们两个人的爱巢进行改造,如此的浓情,真是让人羡慕!
美家欣赏
客厅墙面整体白色居多,沙发墙和窗帘的部分选择蓝色作为辅助色调。沙发、茶几、电视柜都是深色实木材质,白色-蓝色-原木色,三个颜色递进,在视觉上就会显得很融洽。
靠背也是采取深和浅的颜色互相搭配,让整体暖色调都提升了不少。

在地板部分采用菱形铺贴法,为空间带来立体感。菱形的瓷砖也与吊顶的花纹相呼应,由下往上空间都拉升了不少。

电视背景墙为避免瓷砖又太过单调,所以陈昌设计师从瓷砖的纹理上面入手,选择有着大理石纹理的瓷砖,既容易清洁,又和地板纹理相同。
电视柜实木设计显得很沉稳,两侧绿植又为空间增加了一份活力。这样空间更为柔和,也符合小美风格的灵动,营造出温暖的家居体验。
餐厅冰箱是陈姐很喜欢的部分,她说:“原来厨房很小,冰箱放在厨房会很挤,放在客厅拿东西会很不方便”,所以陈昌设计师特意在厨房门的位置,做了一个凹陷的空间放置冰箱,摆脱了冰箱不知道该放在何处的困扰,增加了方便性。
家居都选用深色实木,餐桌也不例外,为了不让实木色和白色搭配太过单调,在两侧的收纳柜中间,设计了跟客厅沙发墙一样独特的蓝色背景墙。
主卧窗帘颜色是蓝白相见的色调,加上简约的灯饰,搭配上深蓝的家居,很符合小美风的独特韵味,床头柜的花点缀更是恰到好处
陈姐很喜欢飘窗设计,她说:“以后不收纳的时候还可以铺上毯子,摆上茶具和书,坐在窗边,阳光洒进来心里都感觉温暖了许多”,陈姐是很有童心的人,得知我们要拍摄,她还把最喜欢的娃娃放在飘窗位置。
主卧在收纳的地方做得很细致,采用的是置顶式衣柜,白色衣柜和墙面融为一体,扩大了收纳空间。一家三口的起居都在主卧中,这里充满了爱的味道。

为满足王先生的办公需求,陈昌设计师将次卧的一部分和整个阳台空间全部改成书房,深色的书桌和深绿色椅子,彰显贵气。
旁边的窗帘同样是蓝黄相间,大面积的蓝中间加入一缕黄色,犹如身处海洋中的晚霞,给人无限的温暖、希望。
业主有话说
“装修的时候我怀着孕,先生又常年出差在外,所以装修都是交给设计师和项目经理来做。装修后整体感觉非常好,特别是收纳设计和飘窗的部分是我最喜欢。软装是我和设计师一起挑选,设计师非常用心,在小细节的部分做的非常好,我很是满意。”
设计师简介
从业经历:11年
擅长风格:现代简约、 美式乡村 、现代前卫 、新中式、 简欧
主要荣誉:
中国建筑协会室内设计及分会会员
“贝尔杯”亚洲青年设计师原创室内设计大奖-黑马奖
主要项目:
家装类:
《中建梅溪湖》、《金茂梅溪湖》、《麓山别墅》、《北辰三角洲》、《珠江花城》、《万国城》、《湘江世纪城》、《新地东方明珠》、《翡翠花园》、《长房时代城》、《深业睿城》、《湘府鑫远华城》、《保利花园》、《华盛世纪新城》、《玫瑰园》、《翡翠花园》、《碧桂园》、《通用时代》、《中隆国际御玺》等。
公装类:
《麓谷企业广场办公楼》 、《衡东商会会所》、《和顺楼》等。
设计理念:
设计不是简单的堆砌,而是内心的感悟和传达。
提交您的信息专业家装顾问1对1服务
免费电话申请: 18684928503
马上提交申请即送1000元家装抵用券