美迪装饰

高品质装修选美迪

十年后仍爱我家

24小时咨询热线

400-096-6088

您的位置: 首页 > 家装百科 > 美家记 > 美家记 | 长沙一家三口入住新房,每天都有邻居找上门……

美家记 | 长沙一家三口入住新房,每天都有邻居找上门……

浏览数:7756次 | 发布时间:2018-07-29 |
分享到:

本期《美家记》小美来到佳兆业云顶梅溪湖曹先生家,曹先生一家崇尚极简生活,在和设计师张勋沟通后果断选择了与他们生活理念一致的现代简约风。因原户型厨房与客厅面积太小,设计师考虑到业主一家平时很少下厨,与业主沟通后,将厨房与客厅合并在一起。房子自从开工以来,邻居几乎不间断的前来参观工艺和效果。


房屋信息

楼盘:佳兆业云顶梅溪湖

风格:现代简约风        

户型:三房两卫           

 面积:120               

造价:16万元             


原始结构图

 

▲改动前


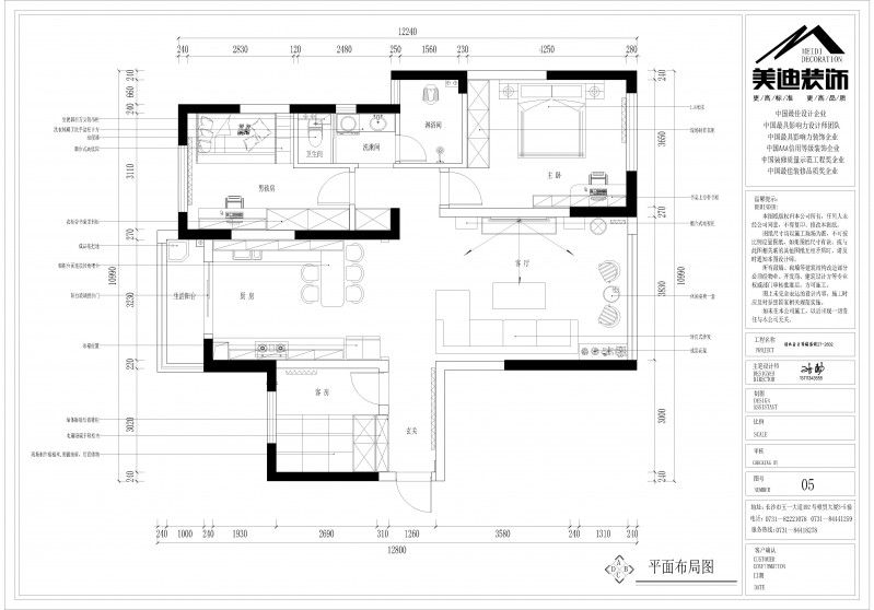
平面布局图

 

▲改动后



作为一个依山傍水风景极佳的房子,因为受制于原户型的缺点:厨房与客厅空间较小,两个卫生间连在一起。设计师张勋结合业主需求,进行深入沟通后,把厨房与客厅之间的隔断打通,这样不仅扩大了客餐厅的空间,房间通透性也更好了。新房是一家三口居住,原户型两处卫生间连在一处,影响居住体验,设计师对其也进行了改动,现在两个卫生间都是独立的,这样不仅合理利用了空间,使用起来也更方便。

玄关


 


这是入户玄关,一进门就能看到绿植让人心情愉悦,大门左侧白色木柜与房间整体风格融为一体,整体简洁、大方,柜子中间部分可以放置进出门需要取放的包包、钥匙等,下半部分可以放置鞋子,上半部分则可以放置闲置物品。

客厅


进入客厅,给人的感觉不止于简单干净,在配色上,设计师结合业主喜好,在原本略显沉闷的冷色系窗帘中添加一抹橙,冷暖结合,不单调也不突兀。

厨房

装修完后,开放式厨房与客厅是曹先生十分满意的地方,他觉得把原户型厨房与客厅之间的隔断打通后,厨房与客厅空旷明朗,使用空间也增大了不少。

 

极简不代表单调枯燥,厨房吊柜是做了特别设计的,不仅是高度要符合业主的使用习惯,在视觉体验上,也不能让人产生审美疲劳,白色与米色相遇,有不一样的味道。

卧室

 

卧室的床是房间女主人亲自挑选的,进入卧室,瞬间激发小美的少女心呀,房间整体配色清新脱俗,和心爱的人住在一起,连做梦都是甜的。

儿童房

曹先生一家对环保与家居品质要求比较高,不仅卧室安装的是实木地板,房间还装了新风、中央空调和暖气。

儿童房整体布局简约精致,床和柜子都是简单的白色,小书桌恰好能满足孩子平时阅读、画画的需求。

▲子龙作品集

上图是曹先生家宝贝(子龙)的画作,是吃可爱长大的小画家没错了。

| 右边为曹先生,左边为设计师张勋 |

曹先生还是上期人气美家的获奖者,这是他与设计师在家的合照,晒美家领奖品很棒有木有~

这是曹先生前几天送过来的锦旗。“我很庆幸自己装修选择了美迪,装修结果我们一家人都很满意,我也愿意向别人推荐美迪,这几天还经常有邻居来家里参观呢。”曹先生说道。

设计师简介


高级设计师——张勋

  从业经验:10年

  个人荣誉:

  中国建筑学会室内设计分会会员

  中国室内装饰协会会员

  中国室内装饰协会注册中级设计师

  中国软装协会会员

  2013年湖南省优秀设计师

  2014年湖南省优秀设计师

  作品多次在比赛中获奖

  设计理念:

 设计必须考虑实际用途和规划,以人为本,以改善使用用途和生活方式为最终目的。一套好的作品,不在于豪华或者奢侈,而在于双方的语言沟通、心灵交流.

分享到:

相关阅读

免费获取报价